La realizzazione della piscina all'aperto nel rione Sant'Anna divide il consiglio comunale.
Le opinioni tra maggioranza e opposizione si sono divise, nel corso dell'ultima seduta, dello scorso 25 novembre. A riaccendere la discussione è stata l'approvata di una delibera per l'acquisto anticipato di terreni privati per la realizzazione dell'impianto, ceduti gratuitamente dai proprietari in cambio della costituzione della servitù di passaggio e passo carraio.
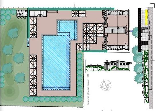
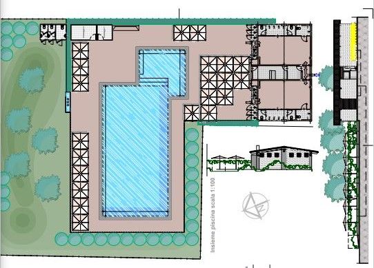
Il progetto, per un costo di circa 400 mila euro, finanziato con un contributo di 300 mila euro dalla Fondazione CRC, prevede la creazione di una piscina a scopo-ludico ricreativo nell'area adiacente al complesso polivalente già presente nella frazione (dotato di un fabbricato ospitante servizi, spogliatoi e locale bar, di due campi per il gioco delle bocce, un campetto di calcio a cinque e di un campo da beach volley).
Nessuna critica al provvedimento, ma voti negativi e astensioni da parte delle opposizioni in relazione al progetto. L'idea della piscina scoperta piace, ma non la location.
"Non entro nel merito della forma del provvedimento, per cui non ci sarebbe nessun problema." - ha spiegato il consigliere Paolo Magnino (PD) - "Ritengo però che il progetto di questa piscina a Sant'Anna che, viste anche le difficoltà post covid nella gestione degli impianti sportivi, non sia adeguata. Quando si costruisce un'opera pubblica non bisogna valutare solo il costo di costruzione in sé, ma le spese di gestione: un'opera deve essere sostenibile nel tempo. Una gestione congiunta con la rinnovata piscina comunale coperta sarebbe stata una scelta migliore ragionando in termini economici".
Giampiero Caramello (Forza Italia): "Non contesto la forma del provvedimento, ma la scelta della location. Sarebbe stato meglio forse prevedere un luogo più vicino alla piscina coperta. Non vedo, con questa location, per il futuro una possibilità di investimenti positivo".
Voto di astensione per il consigliere Laura Barello: "La bontà del provvedimento non si discute, ma mi asterrò perché non conosco il progetto e mi riservo di vederlo e valutarlo in seguito".
Dubbi e perplessità anche da parte del consigliere Luciano D'Agostino: "Provvedimento impeccabile, ma come gli altri consiglieri e da uomo di sport penso che pensare a una location adiacente alla piscina coperta avrebbe facilitato la gestione dell'impianto guardando anche al futuro"
"Ringrazio per gli interventi ci tengo a rimarcare che il progetto era in diversi programmi elettorali, il nostro prevedeva la riqualificazione di tutti i poli sportivi rionali, contro la realizzazione di un'unica area sportiva localizzata al Beila." - il sindaco, Paolo Adriano, in risposta ai consiglieri - "La scelta su Sant'Anna rientra in questo concetto, il luogo non è stato scelto a caso. Inoltre sarà una piscina ludica, non sportiva, servirà per i cittadini. Non sarebbe stato possibile, per diversi fattori, realizzarla accanto a quella coperta".
Sulla gestione, l'assessore Luca Robaldo: "L'impianto coperto richiede una gestione diversa. La piscina di Sant'Anna avrà carattere ludico, non sportivo. In merito alle difficoltà del settore, causate dalla pandemia, sono evidenti: nuove norme per l'accesso del pubblico all'impianto, ricircolo dell'aria etc, e in questo senso abbiamo già incontrato il gestore dell'impianto coperto per individuare le migliori soluzioni".
A chiudere la discussione il presidente del consiglio comunale, Elio Tomatis: "Stiamo parlando di una struttura ludica, pensata vicino a un impianto ricreativo già esistente. Piscina scoperta e coperta sono due impianti di natura e con funzione ben diversa. Sulla location è risaputo che non vi è la possibilità di usufruire dei terreni adiacenti all'impianto comunale coperto, per i quali è in corso ancora un contenzioso, senza dimenticare che passa sotto la linea dell'alta tensione e sottoposta a notevoli influssi eolici, condizioni certamente non ideali per un impianto all'aperto".





