La Provincia di Cuneo si è classificata prima in graduatoria del Bando Pnrr Missione 4 “Istruzione e ricerca” con un progetto per una nuova palestra dell’Istituto Alberghiero “Giolitti” sezione di Barge. A livello regionale è l’unica Provincia beneficiaria dell’investimento 1.3 “Piano per le infrastrutture per lo sport nelle scuole”. Appena arriverà il decreto di assegnazione formale del finanziamento potrà avviare le fasi progettuali definitiva ed esecutiva della nuova palestra e poi i lavori di esecuzione entro settembre 2026. La scuola, che conta 275 allievi su 17 classi, potrà dotarsi di un nuovo impianto sportivo con una superficie di campo da gioco di 780 mq e una superficie locali accessori di 420 mq. Il progetto di fattibilità tecnico economica, firmato dall’architetto Fulvio Bachiorrini, ammonta a 2.625.000 euro.
“Esprimo grande soddisfazione per l’importante risultato raggiunto – dice il vice presidente della Provincia, Massimo Antoniotti – e ringrazio tutti gli uffici che hanno lavorato finora per questo. La Provincia continua ad investire sulla scuola per offrire ai nostri giovani edifici e palestre accoglienti e sicure”.
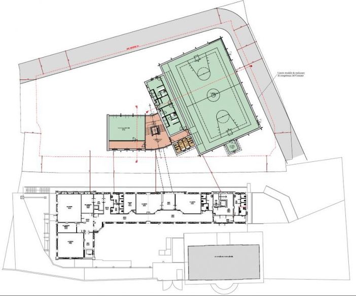
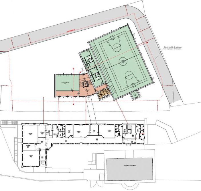
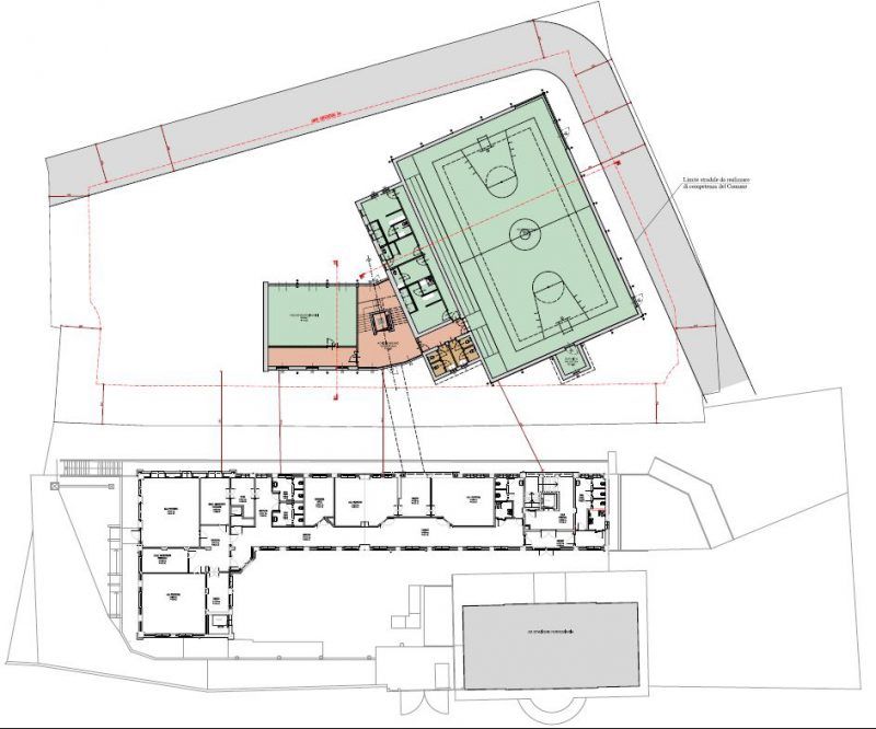
L’Istituto Alberghiero “Giovanni Giolitti” di Barge ospita allievi provenienti da tutto il Saluzzese, dalla pianura e dalle vallate e anche dal Pinerolese ed ha visto crescere negli anni il numero di studenti arrivando a completare l’intero percorso quinquennale. La sede è stata costruita ex novo. Il “Giolitti” propone nuovi corsi di formazione sia tecnica che professionale. E’ stato l’aumento esponenziale degli iscritti ha convincere la Provincia, insieme al Comune e alla direzione didattica dell’istituto, sulla necessità di ampliare la scuola. Da qui l’acquisizione da parte del Comune dell’area retrostante l’edificio scolastico per costruire una nuova manica per attività fisiche e una palestra ad uso scolastico, ma a disposizione di altri utenti per dare una risposta alle numerose richieste che arrivano dalla cittadinanza.
Gli edifici in ampliamento saranno di forma semplice e compatta, in modo tale da risparmiare suolo e garantire un buon coefficiente di forma, indispensabile per raggiungere gli elevati standard di prestazione energetica che ci si è prefissi, oltre a quelli antisismici. L’edificio, che ospiterà i due locali per attività fisica, sarà disposto su due livelli all’interno di una manica con uno snodo all’altezza del vano scala da cui, al piano primo, si imposta una passerella vetrata con struttura in acciaio che andrà a collegarsi con l’attuale edificio scolastico. Sul lato a sud, oltre ai servizi e spogliatoi, verrà realizzata la nuova palestra di tipo B2, dotata di campo regolamentare da basket. E’ previsto anche un locale per attività fisica dei diversamente abili, mentre al primo piano ci sarà una sala per attività aerobica.
Per quanto riguarda l’architettura dell’edificio scolastico saranno utilizzati materiali della tradizione locale, tenendo conto anche del luogo in cui dovrà sorgere, ai limiti del centro storico e all’inizio della zona agricola. L’edificio sarà eco-compatibile, a minimo impatto ambientale, con consumi energetici provenienti principalmente da fonti rinnovabili. Con l’impiego della tecnologia “domotica” si potrà realizzare la gestione integrata degli impianti, tramite gestioni automatiche modulari dei consumi e la lettura di dati meteorologici esterni, quali la temperatura e la luminosità.





